604-961-8688
realtor phone number +1 (604) 961-8688
agent realty RA Realty Alliance Inc.
778-589-2688
LOT 38 FALLINGBROOK London South (South V), Ontario N6P1H5, London South (South V) , N6P1H5
Listing ID: X12972278
Share
$1,217,150
Price
4
Bed
4
Bath
2,500
Sq. Ft.
Data last updated: April 09, 2026 at 02:40am
Quick Access
Photos
Video
360 Tour
Map

Property Description

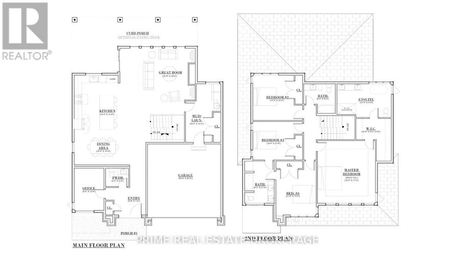
What if you could walk through your home before it's built, and change anything you want? That's how Halcyon Homes works.At 4232 Fallingbrook Road in The Heathwoods, Lambeth, this to-be-built 4-bedroom, 3.5-bathroom custom home sits on one of the community's most coveted lots: a premium 50' x 152' parcel backing onto mature trees. Privacy like this doesn't come along often.Every Halcyon home starts with a model concept, in this case the Arvada at approximately 2,800 sq ft, but nothing is locked in. You choose the layout, the finishes, and the flow of every room. Their design-build process is unlike anything you've experienced: transparent pricing, real-time plan modifications in their design studio, and a dedicated team that walks you through every decision without pressure or hidden costs.Pricing shown reflects the Arvada model. These are starting concepts to give you a real sense of what's possible. Reach out for a no-pressure discovery call and you'll learn more about new home construction than you thought possible.The Heathwoods puts you minutes from Lambeth Village's cafés and local shops, with quick access to Hwy 401/402 when you need it. Walk through The Myra Model Home at 4100 Fallingbrook Road to experience Halcyon's quality firsthand. Pricing includes HST rebate. A lot premium of $60,000 plus HST , not included in the price. Ask us about the $100,000 builder incentive. Only a few lots remain. (id:26452)

House located at LOT 38 FALLINGBROOK London South (South V), Ontario N6P1H5. It has 4 beds, 4 bathrooms, and is 2500 square feet. It's is in the South V neighborhood.
Show More keyboard_arrow_down


Agent Contact: JUSTIN KONIKOW Phone: +15194739992
Listing Courtesy of: PRIME REAL ESTATE BROKERAGE
Source: crea , MLS#: X12972278 Agent Contact: ROGER HORVATH Phone: +14165641979
Listing Courtesy of: PRIME REAL ESTATE BROKERAGE
Source: crea , MLS#: X12972278

close
William Chim
604-961-8688

Here to help with your Real Estate inquiries

William Chim
604-961-8688
chat
Message
By sharing this listing, you have agreed with roomvu's terms and conditions of usage
$3,703.37
Monthly
$878,400
Total Mortgage
$219,600
Down Payment